Critically acclaimed Venice Beach restaurant Dudley Market is about to have a new baby brother right next door. Although, if you were to ask the owners they might tell you the new concept - codenamed “Next Door” - would be considered more of a big brother of sorts. The big brother with a more sophisticated, robust palate. The type of brother that is friends with the owner, so his favorite spot is at the dine-in chef’s table situated at the foot of the woodfired hearth in the center of the restaurant. And like any good older brother, he’s apt to treat you to his favorite cocktail or rare natural wine from his grand old bar stacked with the troves from his worldly travels.


Our relationship with food cooked over fire traces back 1.8 million years and remains the fundamental part of our culinary DNA.
When Venn Studio was approached by the owners, a duo made up of young but seasoned restaurant entrepreneurs, we were tasked with telling the story of fire and how it has shaped our relationship with food. So, we started our research.
We all know that life changed for humanity when (wo)man discovered fire. Fire gave us the ability to see at night, to cook, and protect our families and keep them warm. We brought fire into the home. The word focus comes from the latin word for hearth or fireplace. In medieval halls, the hearth commonly stood prominently in the middle of the space with the smoke rising through an opening in the roof. And even though we are in sunny Los Angeles, the fireplace is still the staple of any comfortable home.
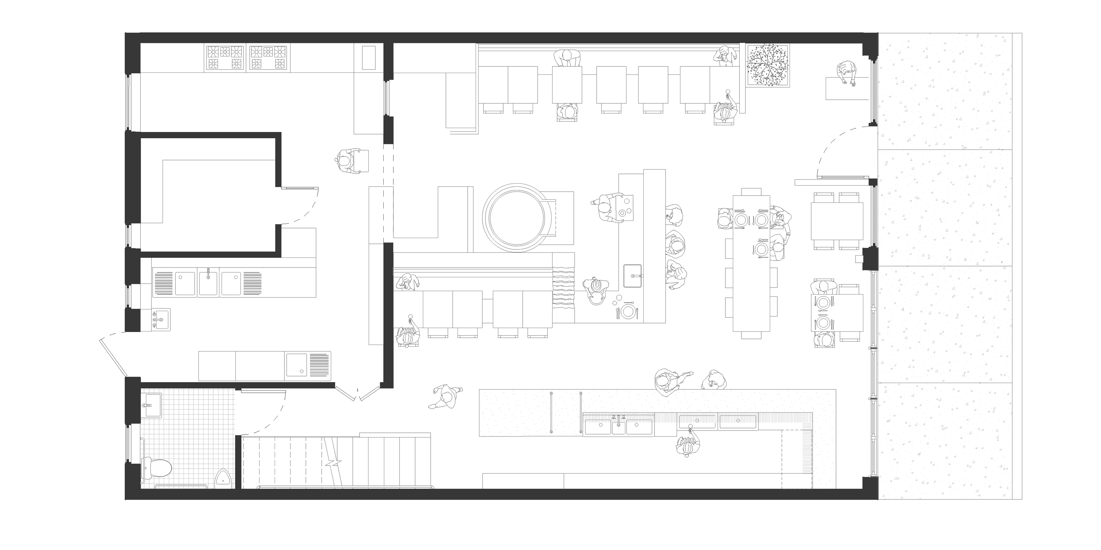
The concept for the restaurant was focused around this idea of fire. The idea that fire is the most basic way to prepare food. We placed a large woodfired hearth oven right in the middle of the space. It's the first thing you see, feel, smell and hear when you walk in. With stacks of wood on hand, fresh whole fish locally caught by the owner himself, are cooked right infront of guests in that hearth. Flatbreads and seasonal roasts are served up on the chef's table, bringing guests close to the source.
Guests are invited to feel the heat. The hearth oven is visible from all points in the restaurant; peeking through the plastered arches and reflected back in the antique mirrored bar back as a reminder that it's the fire that brings us together.
